琳达看房记——鼎基.丽湾域

2010-03-05 15:34 来源:本站信息 浏览人数:16444次

         嗨!大家好,我是琳达,今天我带大家到位于苏州河边的“鼎基.丽湾域”看看,首先我们来到“鼎基.丽湾域”的售楼中心,刚进去就被他们的楼盘展示所吸引,整个楼盘散发着高贵优雅的法式风格。小区整体规划呈“梯形”,北高南低、西高东低、外高内地的空间姿态完美呈现,我们来看图片

琳达看房记——鼎基.丽湾域

       鼎基·丽湾域,总投资100000万元,用地面积36.8万m2,建筑面积87万m2,占地面积10万平米,总建筑面积19万方,容积率1.2,绿化率35%, 

 

 

 

         “鼎基.丽湾域”是以双拼、联排、叠加、花园洋房、高层、小高层等多种住宅类型组合,或高贵优雅,或精致细腻,将阳光、流水、绿树、鲜花和建筑的关系发挥到极致,

       据里面工作人员了解,该楼盘一期基本已经售完,只剩寥寥几套,对“鼎基·丽湾域”感兴趣的朋友要抓紧行动了哦!

琳达看房记——鼎基.丽湾域

 

 

 

 

         鼎基·丽湾域”西临苏州河,风景优美,苏州河天然水景与内部园林小景相融,内设10万方左右的商业街,可供业主消费方便。区内公园和中央景观与商业街紧密相连,购物休闲两不误,将生活的乐趣坦然流露。

       里面还有一个室内外24小时恒温的游泳池。一个露天游泳池和一个戏水池。以满足业主购物、健身、休闲漫步的一切需求。

琳达看房记——鼎基.丽湾域

 

 

     “鼎基.丽湾域”西邻的苏州河

琳达看房记——鼎基.丽湾域

 

 

 

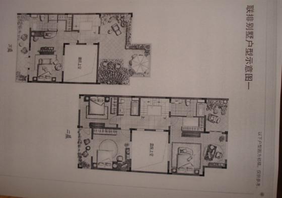
 下面我们来看一下户型图

 

        洋房外观

琳达看房记——鼎基.丽湾域

 

 

       户型图1

琳达看房记——鼎基.丽湾域

 

 

 

        户型图2

 琳达看房记——鼎基.丽湾域

 

 

 

        户型图3

琳达看房记——鼎基.丽湾域

 

 

 

        户型图4

琳达看房记——鼎基.丽湾域

 

 

 

 

        户型图5

 琳达看房记——鼎基.丽湾域

 

 

        以上就是关于整个“鼎基.丽湾域”的概况,琳达与大家下期再见!

 

 

 

 

                                                                                                                                        责任编辑:alinda


吴江房产网为您提供吴江房产信息和吴江二手房信息!了解更多吴江楼市请到www.wjfcw.com.cn

  • 吴江二手房,租房,扫以上↑微信二维码关注

  • 更多吴江房产资讯,请扫以上↑微信二维码关注